Italiano
English
88.847 €

Ufficio in vendita a Paderno Dugnano

Ufficio in vendita • Paderno Dugnano - Via Giustino Fortunato, 58
Via Giustino Fortunato n.58 - Paderno Dugnano (MI)

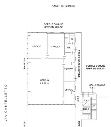
Ufficio di 216mq, sito al secondo piano con ascensore, composto da ingresso su corridoio, quattro locali ufficio e due bagni.
DATA ASTA: 18/05/2026

L’immobile viene proposto tramite asta giudiziaria e il prezzo indicato rappresenta l’offerta minima di partenza. Per partecipare è necessario essere in possesso almeno del 10% del prezzo di partenza. Esiste anche la possibilità di acquistare con mutuo fino al 100%.
AsteGlobal è un team di professionisti specializzati nel settore delle aste immobiliari e della consulenza, con l’obiettivo di accompagnarti verso un acquisto sicuro e conveniente. Ti forniamo assistenza completa durante tutto il processo: dalla raccolta delle informazioni fino alla partecipazione all’asta.
Se possiedi un immobile già all’asta o a rischio di esserlo, potresti avere delle soluzioni per gestire o azzerare i tuoi debiti. Contattaci per capire come possiamo aiutarti.
Scrivici senza impegno per ricevere maggiori informazioni o fissare un appuntamento.
Caratteristiche principali
Codice
V003418
Città
Paderno Dugnano
Categoria
Ufficio
Prezzo
88.847 €
Locali
4
Bagni
2
Mq
216
Piano
2
Classe energetica
F
Stato Immobile
Ottimo
Grado
Medio
Riscaldamento
Centralizzato
Raffrescamento
Centralizzato
Infissi
PVC Doppio Vetro
Serramenti
Buono
Pavim. Cucina
Ceramica
Pavim. Bagno
Ceramica
Pavimento
Ceramica

Accessori: Aria Condizionata, Ascensore, Doppi Vetri, Passaggio Automobilistico, Passaggio Pedonale

Mappa
Via Giustino Fortunato 58, Paderno Dugnano (MI)
Condividi su
Cookie preference