Italiano
English
171.000 €

4 o più locali in vendita a Canegrate

4 o più locali in vendita • Canegrate - Via Ruggero Leoncavallo, 10
Via Ruggero Leoncavallo n.10 - Canegrate (MI)

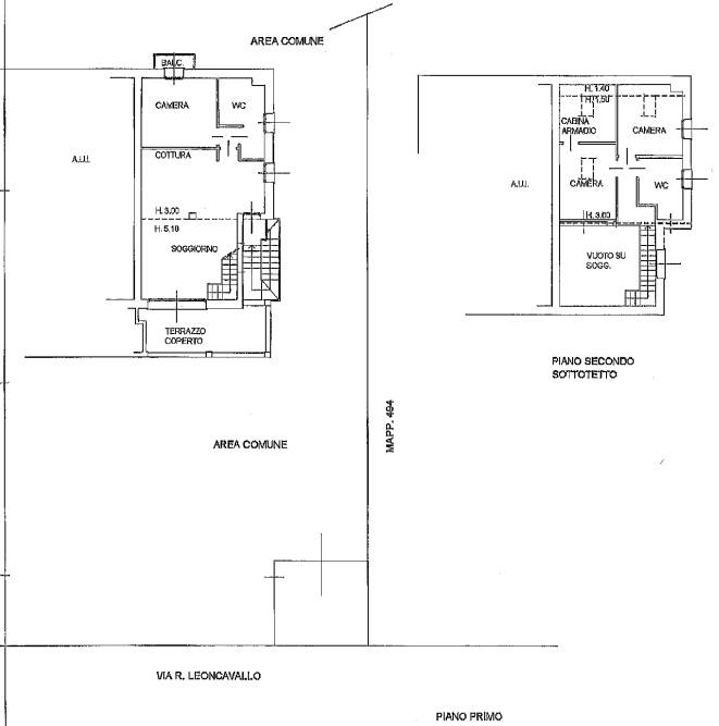
Appartamento quadrilocale di 145mq. sito al piano primo in stabile senza ascensore, così composta: Ingresso, soggiorno con angolo cottura, camera da letto, bagno, ampio terrazzo coperto accessibile dal soggiorno e un balcone; al piano secondo due camere da letto, cabina armadio, disimpegno e bagno; i piani sono tra loro collegati da una scala interna.
DATA ASTA: 18/06/2026

Sei proprietario di un immobile che è stato messo all'asta o che è prossimo al seguente provvedimento? Potrebbe esserci la possibilità di cancellare i tuoi debiti, contattaci per avere informazioni in merito!
Il presente immobile viene venduto in ASTA.
Il suo prezzo si riferisce all’offerta minima, contattaci per fissare un appuntamento per avere tutte le informazioni necessarie per poter partecipare alla gara d’asta, le foto e le condizioni dell’immobile.
AsteGlobal è una società di professionisti, specializzate in ASTE e CONSULENZA IMMOBILIARE.
Siamo una realtà che mira a soddisfare le richieste del cliente, per poter ottenere il massimo da ogni forma di investimento nel campo delle aste.
Scopri la possibilità di acquistare all’asta anche con il MUTUO al 100%!!
Per la partecipazione all’asta è necessario avere almeno il 10% dell’offerta minima!
Caratteristiche principali
Codice
V003309
Città
Canegrate
Categoria
4 o più locali
Prezzo
171.000 €
Locali
4
Camere
3
Bagni
2
Mq
145
Balconi
1
Mq Balcone
2
Terrazzi
1
mq Terrazzo
19
Piano
1
Classe energetica
F
Stato Immobile
Buono
Grado
Medio
Tipo Soggiorno
Soggiorno
Tipo Cucina
Angolo Cottura
Riscaldamento
Autonomo
Tipo Impianto
Pavimento
Acqua Calda
Autonoma
Infissi
Legno Doppio Vetro
Serramenti
Buono
Persiana
Persiana PVC
Pavim. Giorno
Gres Porcellanato
Pavim. Notte
Gres Porcellanato
Pavim. Cucina
Gres Porcellanato
Pavim. Bagno
Ceramica

Accessori: Doppi Vetri, Porta Blindata, Ripostiglio, Veranda, Video Citofono

Mappa
Via Ruggero Leoncavallo 10, Canegrate (MI)
Condividi su
Cookie preference