Italiano
English
187.500 €

Negozio in vendita a Milano

Negozio in vendita • Milano (Affori/ Bovisa/ Niguarda/ Testi) - Via Enrico Cosenz, 81
Via Enrico Cosenz n.81 - Milano (MI)

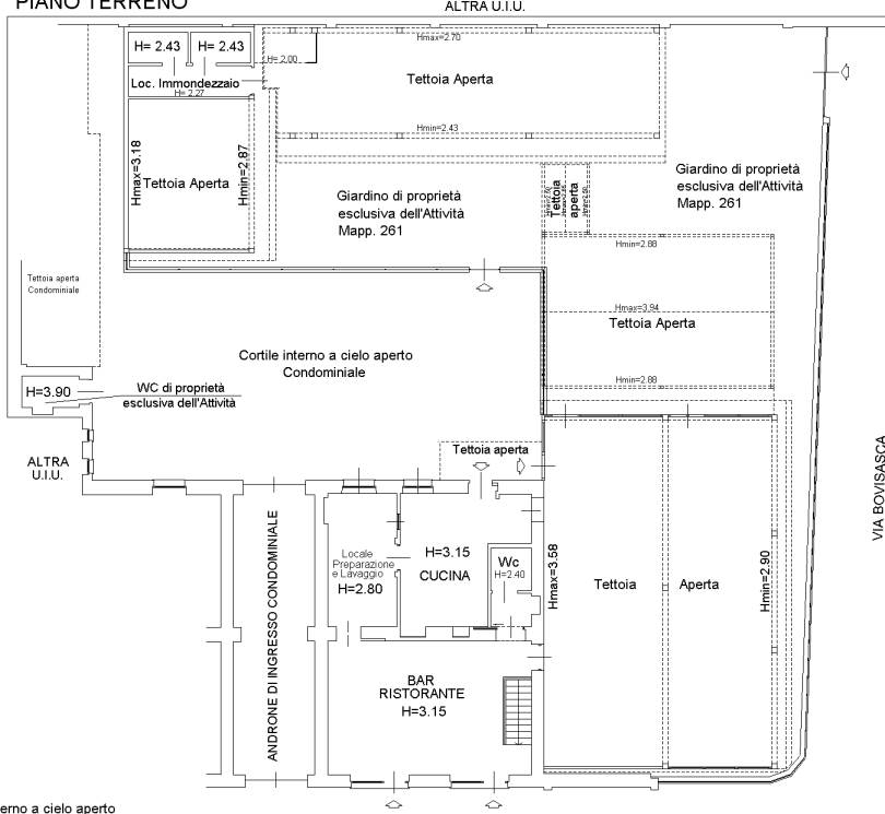
Negozio di 96mq, sito a piano terra, così composto: ingresso su ampio locale, cucina, locale lavaggio, disimpegno, bagno.
Scala interna collega al piano interrato: due vani ad uso deposito, spogliatoio e due bagno.
Completano il lotto: quattro tettoie esterne, giardino ad uso esclusivo e un bagno esterno.
DATA ASTA: 04/03/2026

Sei proprietario di un immobile che è stato messo all'asta o che è prossimo al seguente provvedimento? Potrebbe esserci la possibilità di cancellare i tuoi debiti, contattaci per avere informazioni in merito!
Il presente immobile viene venduto in ASTA.
Il suo prezzo si riferisce all’offerta minima, contattaci per fissare un appuntamento per avere tutte le informazioni necessarie per poter partecipare alla gara d’asta, le foto e le condizioni dell’immobile.
AsteGlobal è una società di professionisti, specializzate in ASTE e CONSULENZA IMMOBILIARE.
Siamo una realtà che mira a soddisfare le richieste del cliente, per poter ottenere il massimo da ogni forma di investimento nel campo delle aste.
Scopri la possibilità di acquistare all’asta anche con il MUTUO al 100%!!
Per la partecipazione all’asta è necessario avere almeno il 10% dell’offerta minima!
Caratteristiche principali
Codice
V003094
Città
Milano (Affori/ Bovisa/ Niguarda/ Testi)
Categoria
Negozio
Prezzo
187.500 €
Locali
2
Camere
2
Bagni
4
Mq
96
Mq Giardino
285
Piano
Terra
Classe energetica
G
Stato Immobile
Buono
Grado
Medio
Arredi
Non Arredato
Tipo Soggiorno
Soggiorno
Tipo Cucina
Abitabile
Riscaldamento
Autonomo
Infissi
Alluminio
Serramenti
Buono
Persiana
Personalizzato
Pavim. Giorno
Ceramica
Pavim. Notte
Ceramica
Pavim. Cucina
Ceramica
Pavim. Bagno
Ceramica
Pavimento
Ceramica
Numero Vetrine
Due

Accessori: Aria Condizionata, Passaggio Automobilistico, Passaggio Pedonale, Porta Blindata, Ripostiglio, Tavolini Esterni

Mappa
Via Enrico Cosenz 81, Milano (MI)
Condividi su
Cookie preference