Italiano
English
62.850 €

3 locali in vendita a Abbiategrasso

3 locali in vendita • Abbiategrasso - Via Generale Armando Diaz, 15
Via Generale Armando Diaz n.15 - Abbiategrasso (MI)

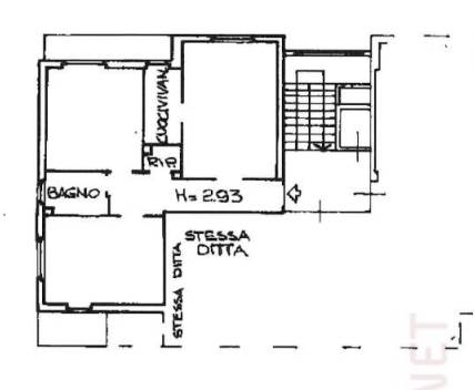
Appartamento trilocale di 88mq, sito al secondo piano senza ascensore, così composto: ingresso su disimpegno, soggiorno con cucina, disimpegno, ripostiglio, due camere con balcone e un bagno.
Completa il lotto cantina a piano interrato.
DATA ASTA: 17/02/2026

Sei proprietario di un immobile che è stato messo all'asta o che è prossimo al seguente provvedimento? Potrebbe esserci la possibilità di cancellare i tuoi debiti, contattaci per avere informazioni in merito!
Il presente immobile viene venduto in ASTA.
Il suo prezzo si riferisce all’offerta minima, contattaci per fissare un appuntamento per avere tutte le informazioni necessarie per poter partecipare alla gara d’asta, le foto e le condizioni dell’immobile.
AsteGlobal è una società di professionisti, specializzate in ASTE e CONSULENZA IMMOBILIARE.
Siamo una realtà che mira a soddisfare le richieste del cliente, per poter ottenere il massimo da ogni forma di investimento nel campo delle aste.
Scopri la possibilità di acquistare all’asta anche con il MUTUO al 100%!!
Per la partecipazione all’asta è necessario avere almeno il 10% dell’offerta minima!
Caratteristiche principali
Codice
V003020
Città
Abbiategrasso
Categoria
3 locali
Prezzo
62.850 €
Locali
3
Camere
2
Bagni
1
Mq
88,6
Balconi
2
Mq Balcone
1
Piano
2
Classe energetica
G
Stato Immobile
Buono
Grado
Medio
Arredi
Non Arredato
Tipo Soggiorno
Soggiorno
Tipo Cucina
Angolo Cottura
Riscaldamento
Centralizzato
Infissi
Legno
Serramenti
Buono
Persiana
Tapparella PVC
Pavim. Giorno
Ceramica
Pavim. Notte
Ceramica
Pavim. Cucina
Ceramica
Pavim. Bagno
Ceramica

Accessori: Passaggio Automobilistico, Passaggio Pedonale, Porta Blindata, Ripostiglio

Mappa
Via Generale Armando Diaz 15, Abbiategrasso (MI)
Condividi su
Cookie preference