Italiano
English
118.500 €

3 locali in vendita a Milano

3 locali in vendita • Milano (Greco/ Monza/ Palmanova) - Via Emilio de Marchi, 46
Via Emilio de Marchi n.46 - Milano (MI)

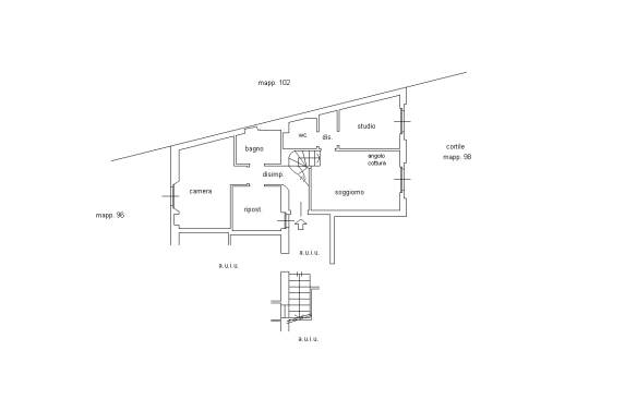
Appartamento trilocale di 59 mq, sito al primo piano, così composto: ingresso su disimpegno, scala interna collega alla zona giorno con angolo cottura, due camere, due bagni, ripostiglio e terrazzo.
Completa il lotto un box di pertinenza.
DATA ASTA: 05/02/2026

Sei proprietario di un immobile che è stato messo all'asta o che è prossimo al seguente provvedimento? Potrebbe esserci la possibilità di cancellare i tuoi debiti, contattaci per avere informazioni in merito!
Il presente immobile viene venduto in ASTA.
Il suo prezzo si riferisce all’offerta minima, contattaci per fissare un appuntamento per avere tutte le informazioni necessarie per poter partecipare alla gara d’asta, le foto e le condizioni dell’immobile.
AsteGlobal è una società di professionisti, specializzate in ASTE e CONSULENZA IMMOBILIARE.
Siamo una realtà che mira a soddisfare le richieste del cliente, per poter ottenere il massimo da ogni forma di investimento nel campo delle aste.
Scopri la possibilità di acquistare all’asta anche con il MUTUO al 100%!!
Per la partecipazione all’asta è necessario avere almeno il 10% dell’offerta minima!
Caratteristiche principali
Codice
V002972
Città
Milano (Greco/ Monza/ Palmanova)
Categoria
3 locali
Prezzo
118.500 €
Locali
3
Camere
2
Bagni
2
Mq
59
Box
1
Mq Box
15
Terrazzi
1
mq Terrazzo
1
Piano
1
Classe energetica
G
Stato Immobile
Buono
Grado
Medio
Arredi
Non Arredato
Tipo Soggiorno
Soggiorno
Tipo Cucina
Angolo Cottura
Riscaldamento
Autonomo
Raffrescamento
Split
Infissi
Alluminio Doppio Vetro
Serramenti
Buono
Persiana
Persiana PVC
Pavim. Giorno
Gres Porcellanato
Pavim. Notte
Gres Porcellanato
Pavim. Cucina
Gres Porcellanato
Pavim. Bagno
Gres Porcellanato

Accessori: Aria Condizionata, Doppi Vetri, Passaggio Automobilistico, Passaggio Pedonale, Porta Blindata, Ripostiglio

Mappa
Via Emilio de Marchi 46, Milano (MI)
Condividi su
Cookie preference