Italiano
English
173.700 €

3 locali in vendita a Cusano Milanino

3 locali in vendita • Cusano Milanino - Via L. Galvani , 8
Via L. Galvani n.8 - Cusano Milanino (MI)

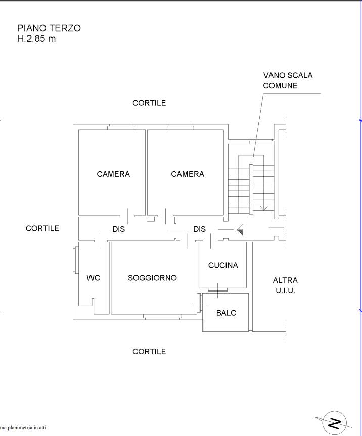
Appartamento trilocale di 86 mq, sito al terzo piano senza ascensore, così composto: ingresso su disimpegno, soggiorno, cucina, due camere, balcone e bagno.
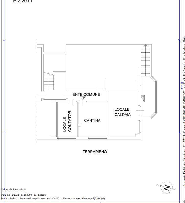
Completa il lotto una cantina di pertinenza.
DATA ASTA: 22/01/2026

Sei proprietario di un immobile che è stato messo all'asta o che è prossimo al seguente provvedimento? Potrebbe esserci la possibilità di cancellare i tuoi debiti, contattaci per avere informazioni in merito!
Il presente immobile viene venduto in ASTA.
Il suo prezzo si riferisce all’offerta minima, contattaci per fissare un appuntamento per avere tutte le informazioni necessarie per poter partecipare alla gara d’asta, le foto e le condizioni dell’immobile.
AsteGlobal è una società di professionisti, specializzate in ASTE e CONSULENZA IMMOBILIARE.
Siamo una realtà che mira a soddisfare le richieste del cliente, per poter ottenere il massimo da ogni forma di investimento nel campo delle aste.
Scopri la possibilità di acquistare all’asta anche con il MUTUO al 100%!!
Per la partecipazione all’asta è necessario avere almeno il 10% dell’offerta minima!
Caratteristiche principali
Codice
V002904
Città
Cusano Milanino
Categoria
3 locali
Prezzo
173.700 €
Locali
3
Camere
2
Bagni
1
Mq
85,78
Balconi
1
Mq Balcone
4,75
Piano
3
Classe energetica
G
Stato Immobile
Buono
Grado
Medio
Arredi
Non Arredato
Tipo Soggiorno
Soggiorno
Tipo Cucina
Semi Abitabile
Riscaldamento
Centralizzato
Raffrescamento
Split
Infissi
Legno Doppio Vetro
Serramenti
Buono
Persiana
Tapparella PVC
Pavim. Giorno
Ceramica
Pavim. Notte
Parquet
Pavim. Cucina
Ceramica
Pavim. Bagno
Ceramica

Accessori: Aria Condizionata, Doppi Vetri, Passaggio Automobilistico, Passaggio Pedonale, Porta Blindata

Mappa
Via L. Galvani 8, Cusano Milanino (MI)
Condividi su
Cookie preference