Italiano
English
82.500 €

1 locale in vendita a Agrate Brianza

1 locale in vendita • Agrate Brianza - Via G. Garibaldi, 13
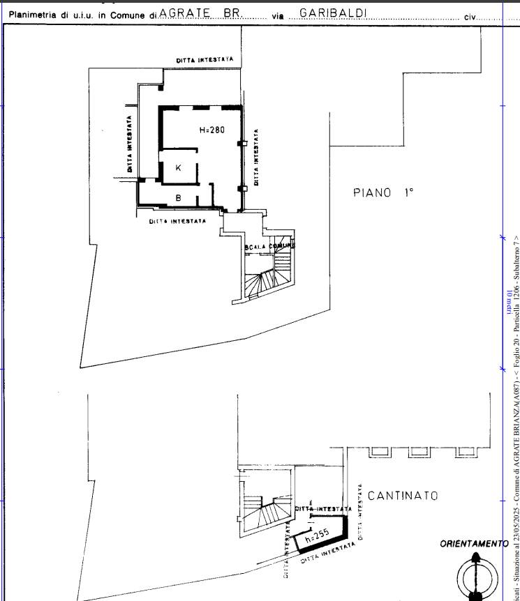
Via G. Garibaldi n.13 - Agrate Brianza

Appartamento monolocale di 50 mq, sito al primo piano, così composto: ampio locale soggiorno/letto, cucina separata, bagno, balcone e terrazzo.
Completano il lotto una cantina e un box di pertinenza.
DATA ASTA: 20/01/2026

Sei proprietario di un immobile che è stato messo all'asta o che è prossimo al seguente provvedimento? Potrebbe esserci la possibilità di cancellare i tuoi debiti, contattaci per avere informazioni in merito!
Il presente immobile viene venduto in ASTA.
Il suo prezzo si riferisce all’offerta minima, contattaci per fissare un appuntamento per avere tutte le informazioni necessarie per poter partecipare alla gara d’asta, le foto e le condizioni dell’immobile.
AsteGlobal è una società di professionisti, specializzate in ASTE e CONSULENZA IMMOBILIARE.
Siamo una realtà che mira a soddisfare le richieste del cliente, per poter ottenere il massimo da ogni forma di investimento nel campo delle aste.
Scopri la possibilità di acquistare all’asta anche con il MUTUO al 100%!!
Per la partecipazione all’asta è necessario avere almeno il 10% dell’offerta minima!
Caratteristiche principali
Codice
V002898
Città
Agrate Brianza
Categoria
1 locale
Prezzo
82.500 €
Locali
1
Camere
1
Bagni
1
Mq
49,5
Box
17
Mq Box
17
Balconi
1
Mq Balcone
1
Terrazzi
1
mq Terrazzo
12,5
Piano
1
Classe energetica
G
Stato Immobile
Buono
Grado
Medio
Arredi
Non Arredato
Tipo Soggiorno
Soggiorno
Tipo Cucina
Semi Abitabile
Riscaldamento
Autonomo
Infissi
Legno Doppio Vetro
Serramenti
Buono
Persiana
Persiana Legno
Pavim. Giorno
Gres Porcellanato
Pavim. Notte
Gres Porcellanato
Pavim. Cucina
Gres Porcellanato
Pavim. Bagno
Gres Porcellanato

Accessori: Doppi Vetri, Passaggio Automobilistico, Passaggio Pedonale, Porta Blindata

Mappa
Via G. Garibaldi 13, Agrate Brianza (MB)
Condividi su
Cookie preference