Italiano
English
321.000 €

4 o più locali in vendita a Milano

4 o più locali in vendita • Milano - Via Simone Saint Bon, 2
Via Simone Saint Bon n.2 - Milano (MI)

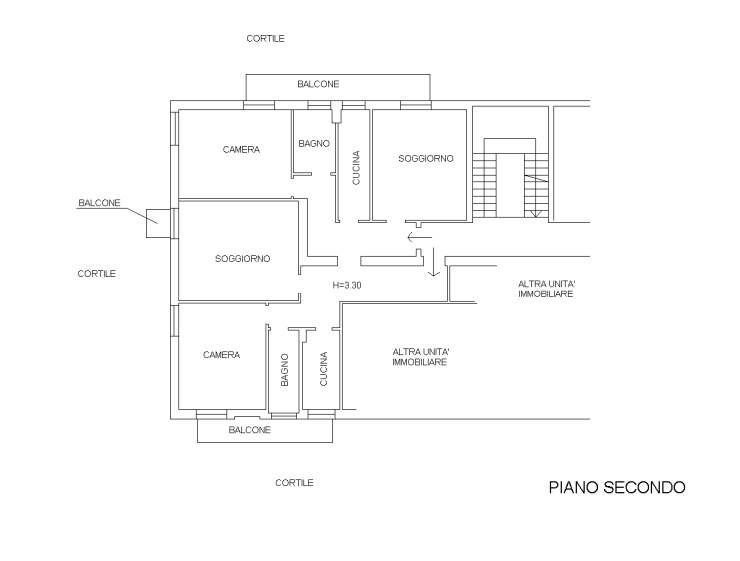
Appartamento quattro locali di 146mq, sito al secondo piano con ascensore, così composto: ingresso su disimpegno, soggiorno con balcone, cucina, bagno, camera, disimpegno, cucina, bagno, camera con balcone, soggiorno con balcone.
Completa il lotto cantina a piano interrato.
DATA ASTA: 17/12/2025

Sei proprietario di un immobile che è stato messo all'asta o che è prossimo al seguente provvedimento? Potrebbe esserci la possibilità di cancellare i tuoi debiti, contattaci per avere informazioni in merito!
Il presente immobile viene venduto in ASTA.
Il suo prezzo si riferisce all’offerta minima, contattaci per fissare un appuntamento per avere tutte le informazioni necessarie per poter partecipare alla gara d’asta, le foto e le condizioni dell’immobile.
AsteGlobal è una società di professionisti, specializzate in ASTE e CONSULENZA IMMOBILIARE.
Siamo una realtà che mira a soddisfare le richieste del cliente, per poter ottenere il massimo da ogni forma di investimento nel campo delle aste.
Scopri la possibilità di acquistare all’asta anche con il MUTUO al 100%!!
Per la partecipazione all’asta è necessario avere almeno il 10% dell’offerta minima!
Caratteristiche principali
Codice
V002747
Città
Milano
Categoria
4 o più locali
Prezzo
321.000 €
Locali
4
Camere
2
Bagni
2
Mq
146
Balconi
3
Mq Balcone
1
Piano
2
Classe energetica
G
Stato Immobile
Buono
Grado
Medio
Arredi
Non Arredato
Tipo Soggiorno
Soggiorno
Tipo Cucina
Abitabile
Riscaldamento
Centralizzato
Infissi
Legno
Serramenti
Buono
Persiana
Tapparella PVC
Pavim. Giorno
Graniglia
Pavim. Notte
Graniglia
Pavim. Cucina
Graniglia
Pavim. Bagno
Ceramica

Accessori: Ascensore, Passaggio Pedonale, Porta Blindata, Portineria/Custode, Tavolini Esterni

Mappa
Via Simone Saint Bon 2, Milano (MI)
Condividi su
Cookie preference