Italiano
English
121.500 €

2 locali in vendita a Milano

2 locali in vendita • Milano (V Giornate/ XXII Marzo/ Porta Romana) - Via Lomellina, 36
Via Lomellina n.36 - Milano (MI)

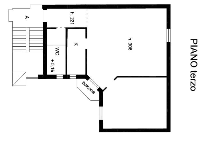
Appartamento bilocale di 68mq, sito al terzo piano con ascensore, così composto: ingresso su disimpegno, bagno, soggiorno con balcone, cucina e camera.
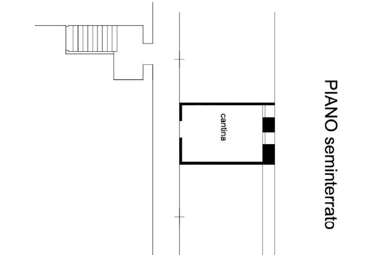
Completa il lotto cantina a piano seminterrato.
DATA ASTA: 14/01/2026

Sei proprietario di un immobile che è stato messo all'asta o che è prossimo al seguente provvedimento? Potrebbe esserci la possibilità di cancellare i tuoi debiti, contattaci per avere informazioni in merito!
Il presente immobile viene venduto in ASTA.
Il suo prezzo si riferisce all’offerta minima, contattaci per fissare un appuntamento per avere tutte le informazioni necessarie per poter partecipare alla gara d’asta, le foto e le condizioni dell’immobile.
AsteGlobal è una società di professionisti, specializzate in ASTE e CONSULENZA IMMOBILIARE.
Siamo una realtà che mira a soddisfare le richieste del cliente, per poter ottenere il massimo da ogni forma di investimento nel campo delle aste.
Scopri la possibilità di acquistare all’asta anche con il MUTUO al 100%!!
Per la partecipazione all’asta è necessario avere almeno il 10% dell’offerta minima!
Caratteristiche principali
Codice
V002735
Città
Milano (V Giornate/ XXII Marzo/ Porta Romana)
Categoria
2 locali
Prezzo
121.500 €
Locali
2
Camere
1
Bagni
1
Mq
68,1
Balconi
1
Mq Balcone
0,4
Piano
3
Classe energetica
G
Stato Immobile
Buono
Grado
Medio
Arredi
Non Arredato
Tipo Soggiorno
Soggiorno
Tipo Cucina
Semi Abitabile
Riscaldamento
Centralizzato
Infissi
PVC Doppio Vetro
Serramenti
Buono
Persiana
Tapparella PVC
Pavim. Giorno
Ceramica
Pavim. Notte
Ceramica
Pavim. Cucina
Ceramica
Pavim. Bagno
Ceramica

Accessori: Ascensore, Doppi Vetri, Passaggio Pedonale, Porta Blindata

Mappa
Via Lomellina 36, Milano (MI)
Condividi su
Cookie preference