Italiano
English
633.750 €

4 o più locali in vendita a Milano

4 o più locali in vendita • Milano (Città Studi/ Lambrate/ Udine/ Loreto) - Vle Andrea Doria, 24
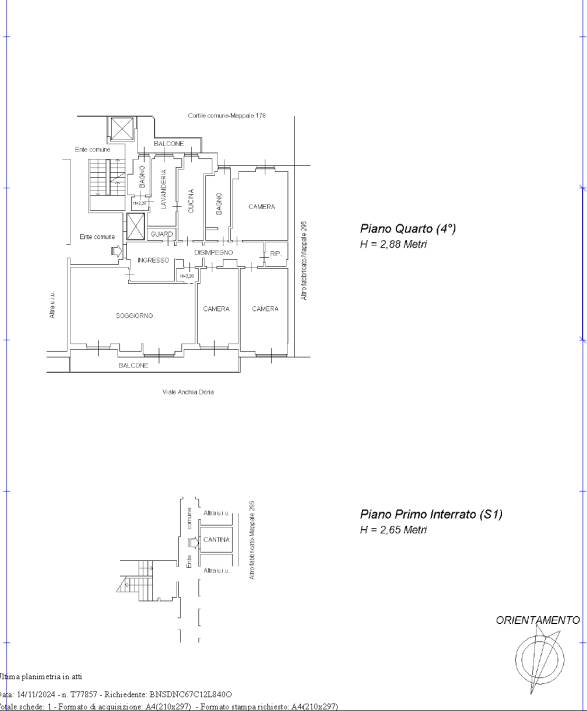
Via Andrea Doria n.24 Milano (MI)

Appartamento quadrilocale di 164.8 mq, sito al quarto piano con ascensore, cosi composto: ingresso con guardaroba, soggiorno, cucina, bagno di servizio, tre camere, due balconi e bagno padronale.
Completa il lotto una cantina di pertinenza.
DATA ASTA: 27/01/2026


Sei proprietario di un immobile che è stato messo all'asta o che è prossimo al seguente provvedimento? Potrebbe esserci la possibilità di cancellare i tuoi debiti, contattaci per avere informazioni in merito!
Il presente immobile viene venduto in ASTA.
Il suo prezzo si riferisce all’offerta minima, contattaci per fissare un appuntamento per avere tutte le informazioni necessarie per poter partecipare alla gara d’asta, le foto e le condizioni dell’immobile.
AsteGlobal è una società di professionisti, specializzate in ASTE e CONSULENZA IMMOBILIARE.
Siamo una realtà che mira a soddisfare le richieste del cliente, per poter ottenere il massimo da ogni forma di investimento nel campo delle aste.
Scopri la possibilità di acquistare all’asta anche con il MUTUO al 100%!!
Per la partecipazione all’asta è necessario avere almeno il 10% dell’offerta minima!
Caratteristiche principali
Codice
V002729
Città
Milano (Città Studi/ Lambrate/ Udine/ Loreto)
Categoria
4 o più locali
Prezzo
633.750 €
Locali
4
Camere
3
Bagni
2
Mq
164,8
Balconi
2
Mq Balcone
5,7
Piano
4
Classe energetica
G
Stato Immobile
Buono
Grado
Medio
Arredi
Non Arredato
Tipo Soggiorno
Soggiorno
Tipo Cucina
Cucinotto
Riscaldamento
Centralizzato
Tipo Impianto
Pavimento
Raffrescamento
Split
Infissi
Alluminio Doppio Vetro
Serramenti
Buono
Persiana
Tapparella PVC
Pavim. Giorno
Ceramica
Pavim. Notte
Parquet
Pavim. Cucina
Ceramica
Pavim. Bagno
Ceramica

Accessori: Aria Condizionata, Ascensore, Doppi Vetri, Passaggio Automobilistico, Passaggio Pedonale, Porta Blindata, Portineria/Custode, Video Citofono

Mappa
Vle Andrea Doria 24, Milano (MI)
Condividi su
Cookie preference