Italiano
English
110.250 €

3 locali in vendita a Bresso

3 locali in vendita • Bresso - Via Roma, 50
Via Roma n.50 - Bresso (MI)

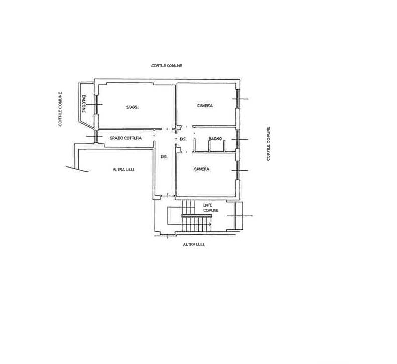
Appartamento trilocale di 79 mq, sito al piano rialzato cosi composto: ingresso, soggiorno con balcone, cucinino, due camere, bagno.
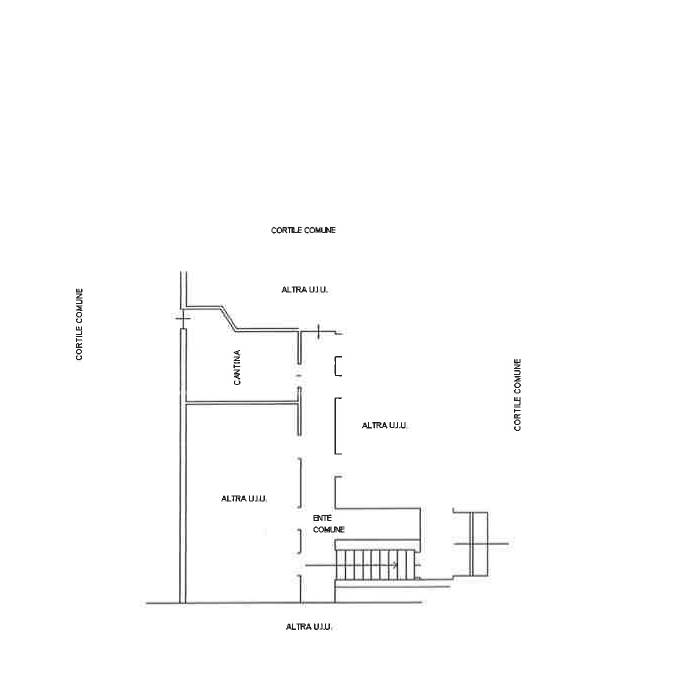
Completano il lotto, una cantina di pertinenza, solaio e box di 17 mq.
DATA ASTA:16/12/2025

Sei proprietario di un immobile che è stato messo all'asta o che è prossimo al seguente provvedimento? Potrebbe esserci la possibilità di cancellare i tuoi debiti, contattaci per avere informazioni in merito!
Il presente immobile viene venduto in ASTA.
Il suo prezzo si riferisce all’offerta minima, contattaci per fissare un appuntamento per avere tutte le informazioni necessarie per poter partecipare alla gara d’asta, le foto e le condizioni dell’immobile.
AsteGlobal è una società di professionisti, specializzate in ASTE e CONSULENZA IMMOBILIARE.
Siamo una realtà che mira a soddisfare le richieste del cliente, per poter ottenere il massimo da ogni forma di investimento nel campo delle aste.
Scopri la possibilità di acquistare all’asta anche con il MUTUO al 100%!!
Per la partecipazione all’asta è necessario avere almeno il 10% dell’offerta minima!
Caratteristiche principali
Codice
V002712
Città
Bresso
Categoria
3 locali
Prezzo
110.250 €
Locali
3
Camere
2
Bagni
1
Mq
79
Box
1
Mq Box
17
Balconi
1
Mq Balcone
1
Piano
Rialzato
Classe energetica
G
Stato Immobile
Buono
Grado
Medio
Arredi
Non Arredato
Tipo Soggiorno
Soggiorno
Tipo Cucina
Cucinotto
Riscaldamento
Centralizzato
Infissi
Alluminio Doppio Vetro
Serramenti
Buono
Persiana
Tapparella PVC
Pavim. Giorno
Parquet
Pavim. Notte
Parquet
Pavim. Cucina
Marmo
Pavim. Bagno
Marmo

Accessori: Doppi Vetri, Passaggio Pedonale, Porta Blindata

Mappa
Via Roma 50, Bresso (MI)
Condividi su
Cookie preference