Italiano
English
66.750 €

3 locali in vendita a Besana in Brianza

3 locali in vendita • Besana in Brianza - Via del Castano, 24
Via del Castano n.24 - Besana in Brianza (MB)

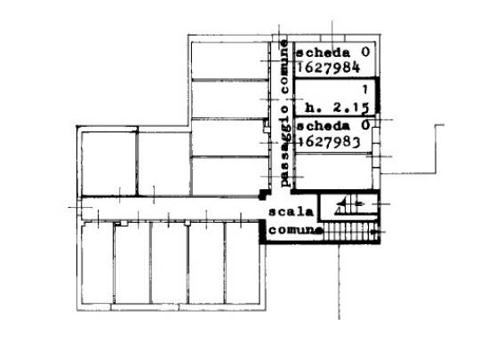
Appartamento trilocale di 82mq, sito al primo piano senza ascensore, così composto: ingresso su disimpegno, ripostiglio, soggiorno con balcone, cucina, disimpegno, bagno e due camere.
Completano il lotto cantina a piano interrato e box a piano terra.
DATA ASTA: 18/12/2025

Sei proprietario di un immobile che è stato messo all'asta o che è prossimo al seguente provvedimento? Potrebbe esserci la possibilità di cancellare i tuoi debiti, contattaci per avere informazioni in merito!
Il presente immobile viene venduto in ASTA.
Il suo prezzo si riferisce all’offerta minima, contattaci per fissare un appuntamento per avere tutte le informazioni necessarie per poter partecipare alla gara d’asta, le foto e le condizioni dell’immobile.
AsteGlobal è una società di professionisti, specializzate in ASTE e CONSULENZA IMMOBILIARE.
Siamo una realtà che mira a soddisfare le richieste del cliente, per poter ottenere il massimo da ogni forma di investimento nel campo delle aste.
Scopri la possibilità di acquistare all’asta anche con il MUTUO al 100%!!
Per la partecipazione all’asta è necessario avere almeno il 10% dell’offerta minima!
Caratteristiche principali
Codice
V002702
Città
Besana in Brianza
Categoria
3 locali
Prezzo
66.750 €
Locali
3
Camere
2
Bagni
1
Mq
82,5
Box
1
Mq Box
18
Balconi
1
Mq Balcone
1,2
Piano
1
Classe energetica
G
Stato Immobile
Buono
Grado
Medio
Arredi
Non Arredato
Tipo Soggiorno
Soggiorno
Tipo Cucina
Semi Abitabile
Riscaldamento
Centralizzato
Infissi
Alluminio Doppio Vetro
Serramenti
Buono
Persiana
Tapparella PVC
Pavim. Giorno
Ceramica
Pavim. Notte
Parquet
Pavim. Cucina
Ceramica
Pavim. Bagno
Ceramica

Accessori: Doppi Vetri, Passaggio Automobilistico, Passaggio Pedonale, Porta Blindata, Ripostiglio

Mappa
Via del Castano 24, Besana in Brianza (MB)
Condividi su
Cookie preference