Italiano
English
652.500 €

4 o più locali in vendita a Corbetta

4 o più locali in vendita • Corbetta - Via Nazario Sauro, 26
Via Nazario Sauro n.26 - Corbetta (MI)

Appartamenti in villa:
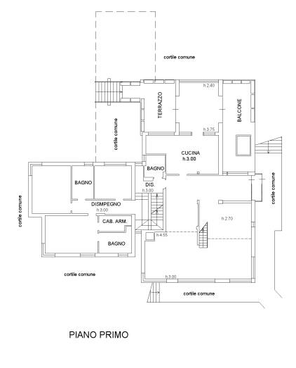
Appartamento quattro locali di 456mq, disposto su più livelli, così composto: ingresso al primo piano su soggiorno con balcone, cucina, sala pranzo con balcone e terrazzo, bagno, disimpegno, due bagni e tre camere.
Scala interna collega al secondo piano: camera, disimpegno, bagno e soppalco.
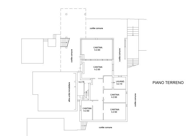
A piano interrato: disimpegno, cinque vani cantina e lavanderia.

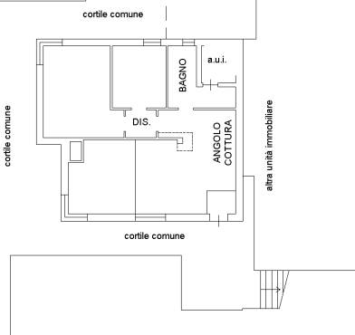
Appartamento trilocale di 106mq, sito a piano terra, così composto: ingresso su soggiorno con angolo cottura, disimpegno, bagno e due camere.

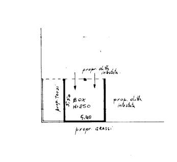
Completano il lotto: due box a piano terra, guardino di proprietà e deposito in corpo staccato.

DATA ASTA: 17/12/2025

Sei proprietario di un immobile che è stato messo all'asta o che è prossimo al seguente provvedimento? Potrebbe esserci la possibilità di cancellare i tuoi debiti, contattaci per avere informazioni in merito!
Il presente immobile viene venduto in ASTA.
Il suo prezzo si riferisce all’offerta minima, contattaci per fissare un appuntamento per avere tutte le informazioni necessarie per poter partecipare alla gara d’asta, le foto e le condizioni dell’immobile.
AsteGlobal è una società di professionisti, specializzate in ASTE e CONSULENZA IMMOBILIARE.
Siamo una realtà che mira a soddisfare le richieste del cliente, per poter ottenere il massimo da ogni forma di investimento nel campo delle aste.
Scopri la possibilità di acquistare all’asta anche con il MUTUO al 100%!!
Per la partecipazione all’asta è necessario avere almeno il 10% dell’offerta minima!
Caratteristiche principali
Codice
V002689
Città
Corbetta
Categoria
4 o più locali
Prezzo
652.500 €
Locali
9
Camere
7
Bagni
5
Mq
383,37
Box
2
Mq Box
15
Mq Giardino
1
Balconi
5
Mq Balcone
1
Piano
Terra
Classe energetica
G
Stato Immobile
Buono
Grado
Signorile
Arredi
Non Arredato
Tipo Soggiorno
Soggiorno
Tipo Cucina
Abitabile
Riscaldamento
Autonomo
Infissi
Legno Doppio Vetro
Serramenti
Buono
Persiana
Tapparella PVC
Pavim. Giorno
Parquet
Pavim. Notte
Parquet
Pavim. Cucina
Gres Porcellanato
Pavim. Bagno
Gres Porcellanato

Accessori: Aria Condizionata, Doppi Vetri, Lavanderia, Passaggio Automobilistico, Passaggio Pedonale, Piscina, Porta Blindata, Ripostiglio, Tavolini Esterni, Video Citofono

Mappa
Via Nazario Sauro 26, Corbetta (MI)
Condividi su
Cookie preference