Italiano
English
289.000 €

RISTRUTTURATO A NUOVO – BICOCCA, MILANO

2 locali in vendita • Milano - Via Arezzo, 8
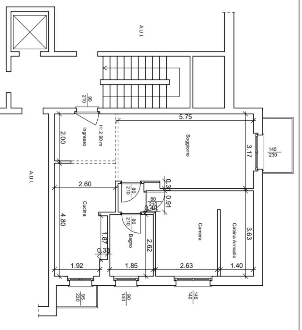
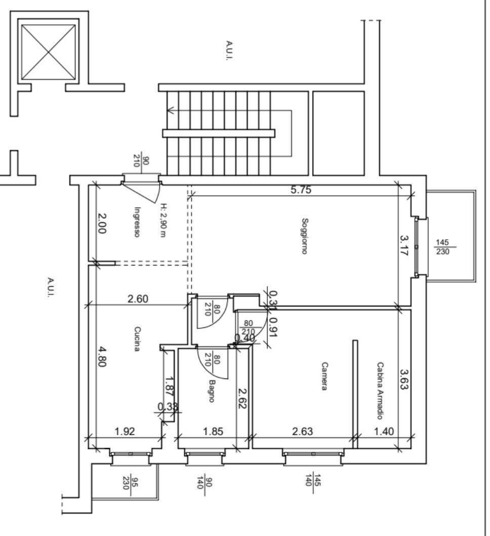
In una delle zone più richieste e ben servite di Milano, a pochi minuti a piedi dalle fermate della metropolitana M5 Bignami e Ponale, proponiamo in vendita un elegante appartamento di 74 mq situato al primo piano di un tranquillo contesto residenziale.
Attualmente in fase di completa ristrutturazione, con consegna a breve, l’immobile sarà pronto per essere abitato. L’ingresso conduce a un luminoso soggiorno con balcone, collegato a una cucina a vista in stile americano con penisola e secondo balcone. Un disimpegno introduce alla zona notte, composta da un ampio bagno finestrato e da una camera matrimoniale dotata di cabina armadio.
La ristrutturazione prevede finiture moderne e di qualità: pavimenti in gres porcellanato, infissi in PVC con triplo vetro e tapparelle elettriche, cucina arredata con penisola e cappa aspirante in classe A, bagno attrezzato con mobile lavabo, armadio a muro, specchio, box doccia walk-in da 1,20 m e mobile su misura per lavatrice e asciugatrice in colonna. L’appartamento è inoltre dotato di impianto di climatizzazione con pompa di calore in tutti gli ambienti, nuovi termosifoni in alluminio e vano cantina ristrutturato e piastrellato.
Possibilità di acquisto di un posto auto a 15.000,00€.
La posizione è strategica e comoda, con supermercati, farmacia, negozi e numerosi servizi di quartiere nelle immediate vicinanze.
Un’opportunità ideale per chi desidera una casa moderna, funzionale e pronta all’uso in una delle aree più dinamiche di Milano.

Il presente testo ha funzionalità promozionale e non costituisce vincolo contrattuale.
Caratteristiche principali
Codice
V002655
Città
Milano
Categoria
2 locali
Prezzo
289.000 €
Spese condominiali
1.500 € / anno
Locali
2
Camere
1
Bagni
1
Mq
74
Posti auto
1
Balconi
2
Piano
1
Classe energetica
D
Stato Immobile
Ristrutturato
Grado
Medio
Tipo Soggiorno
Soggiorno
Tipo Cucina
Abitabile
Riscaldamento
Centralizzato
Tipo Riscaldam.
Tele Riscaldamento
Raffrescamento
Split
Infissi
PVC Triplo Vetro
Serramenti
Nuovo
Pavim. Giorno
Gres Porcellanato
Pavim. Notte
Gres Porcellanato
Pavim. Cucina
Gres Porcellanato
Pavim. Bagno
Gres Porcellanato

Accessori: Aria Condizionata, Ascensore, Porta Blindata, Tapparelle Elettriche, Tripli Vetri, Zanzariere

Distanze
Posizione
Parco pubblico1 km
Istruzione
Scuola materna500 m
Scuola elementare500 m
Mezzi di trasporto
Fermata metro-bus-tram70 m
Altri servizi
Supermercato650 m
Mappa
Via Arezzo 8, Milano (MI)
Video
Condividi su
Cookie preference