Italiano
English
399.000 €

TRILOCALE CON TERRAZZO - ZONA QUARTIERE ADRIANO, MILANO

Appartamento in vendita • Milano - Via Trasimeno, 40/12
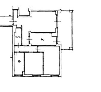
All’ottavo piano di un elegante stabile, nel cuore del Quartiere Adriano, una delle aree residenziali più moderne e in continua evoluzione di Milano, proponiamo in vendita un appartamento luminoso e accogliente di circa 104 mq.
Varcando la soglia si viene accolti da un ampio soggiorno che si apre su un grande terrazzo panoramico, il quale collega direttamente anche la cucina abitabile, creando una piacevole continuità tra interno ed esterno. Questa soluzione rende gli ambienti perfetti per vivere momenti di relax o convivialità, godendo di una splendida vista aperta sulla città.
La cucina, spaziosa e funzionale, si integra armoniosamente con la zona giorno. Un disimpegno conduce alla zona notte, composta da due camere matrimoniali, entrambe luminose e silenziose, e da due bagni, uno con vasca e uno con doccia, pensati per offrire comfort e praticità a tutta la famiglia.
Completano la proprietà una cantina di pertinenza e un posto auto coperto, elementi che contribuiscono a rendere questa abitazione completa e funzionale.
Il Quartiere Adriano è una zona residenziale tranquilla, verde e ben collegata al centro città grazie a comodi mezzi pubblici e alle principali arterie stradali. Nelle vicinanze si trovano negozi, scuole, parchi, supermercati e servizi di ogni genere, che rendono questa location particolarmente adatta a famiglie e a chi cerca comfort e qualità della vita senza rinunciare alla vicinanza con il cuore di Milano.
Questo appartamento si distingue per la luminosità, la vista panoramica e la distribuzione razionale degli spazi, rappresentando una soluzione ideale per chi desidera vivere in un contesto moderno, riservato e perfettamente servito.
Caratteristiche principali
Codice
V002489
Città
Milano
Categoria
Appartamento
Prezzo
399.000 €
Locali
3
Camere
2
Bagni
2
Mq
104
Posti auto
1
Terrazzi
1
mq Terrazzo
20
Piano
8
Classe energetica
F
Stato Immobile
Buono
Grado
Medio
Panorama
Vista Aperta
Orientamento
Sud Ovest
Lati Liberi
2
Arredi
Possibilità
Tipo Soggiorno
Soggiorno
Tipo Cucina
Abitabile
Riscaldamento
Centralizzato
Tipo Riscaldam.
Tele Riscaldamento
Tipo Impianto
Radiatori
Acqua Calda
Centralizzata
Raffrescamento
No
Infissi
Legno Doppio Vetro
Serramenti
Buono
Persiana
Tapparella PVC
Pavim. Giorno
Ceramica
Pavim. Notte
Ceramica
Pavim. Cucina
Ceramica
Pavim. Bagno
Ceramica

Accessori: Ascensore, Doppi Vetri, Parco Condominiale, Porta Blindata, Portineria/Custode

Distanze
Posizione
Parco pubblico600 m
Istruzione
Scuola materna300 m
Mezzi di trasporto
Fermata metro-bus-tram30 m
Stazione dei treni1,7 km
Altri servizi
Banca750 m
Chiesa400 m
Farmacia800 m
Supermercato750 m
Mappa
Via Trasimeno 40/12, Milano (MI)
Condividi su
Cookie preference