English
Italiano
71,250 €

2 bedroom apartment for sale in Cassano d'Adda

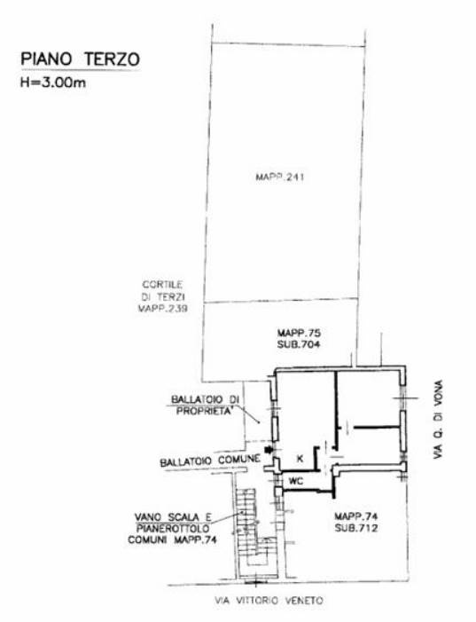
2 bedroom apartment for sale • Cassano d'Adda - Via Vittorio Veneto, 113
Primal Features
Code
V003164
City
Cassano d'Adda
Category
2 bedroom apartment
Price
71,250 €
Locals
3
Bedrooms
2
Bathrooms
1
Sqm
46
Energetic class
G
Property Conditions
Good
Rank
Medium
Heating
Independent
Fixtures
Wooden double glazed
Doors
Good
Blind
Wood Blinds
Floors Living Room
Ceramic
Floors Bedrooms
Ceramic
Floors Kitchen
Ceramic
Floors Bathroom
Ceramic

Accessories: Double Glazing, Armored door

Map
Via Vittorio Veneto 113, Cassano d'Adda (MI)
Share on
Cookie preference