English
Italiano
65,518 €

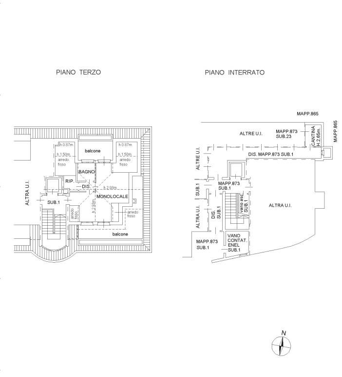
Studio flat for sale in Cesano Maderno

Studio flat for sale • Cesano Maderno - Via Como, 51
Primal Features
Code
V003056
City
Cesano Maderno
Category
Studio flat
Price
65,518 €
Locals
1
Bedrooms
1
Bathrooms
1
Sqm
47
Garages
1
Sqm garage
8
Balconies
1
Sqm balcon
1
Terraces
1
sqm Terrace
1
Floor
3
Energetic class
G
Property Conditions
Good
Rank
Medium
Furniture
Not Furnished
Type living
Living room
Kitchen
Open Kitchen
Heating
Independent
Fixtures
Wooden double glazed
Doors
Good
Blind
Wood Blinds
Floors Living Room
Parquet
Floors Bedrooms
Parquet
Floors Kitchen
Parquet
Floors Bathroom
Parquet

Accessories: Elevator, Double Glazing, Passing Car, Pedestrian Crossing, Armored door

Map
Via Como 51, Cesano Maderno (MB)
Share on
Cookie preference