English
Italiano
195,000 €

Commercial Premises / Showrooms for sale in Milano

Commercial Premises / Showrooms for sale • Milano (Certosa/ Quarto Oggiaro/ Villa Pizzone) - Via Barnaba Oriani, 58
Primal Features
Code
V002780
City
Milano (Certosa/ Quarto Oggiaro/ Villa Pizzone)
Category
Commercial Premises / Showrooms
Price
195,000 €
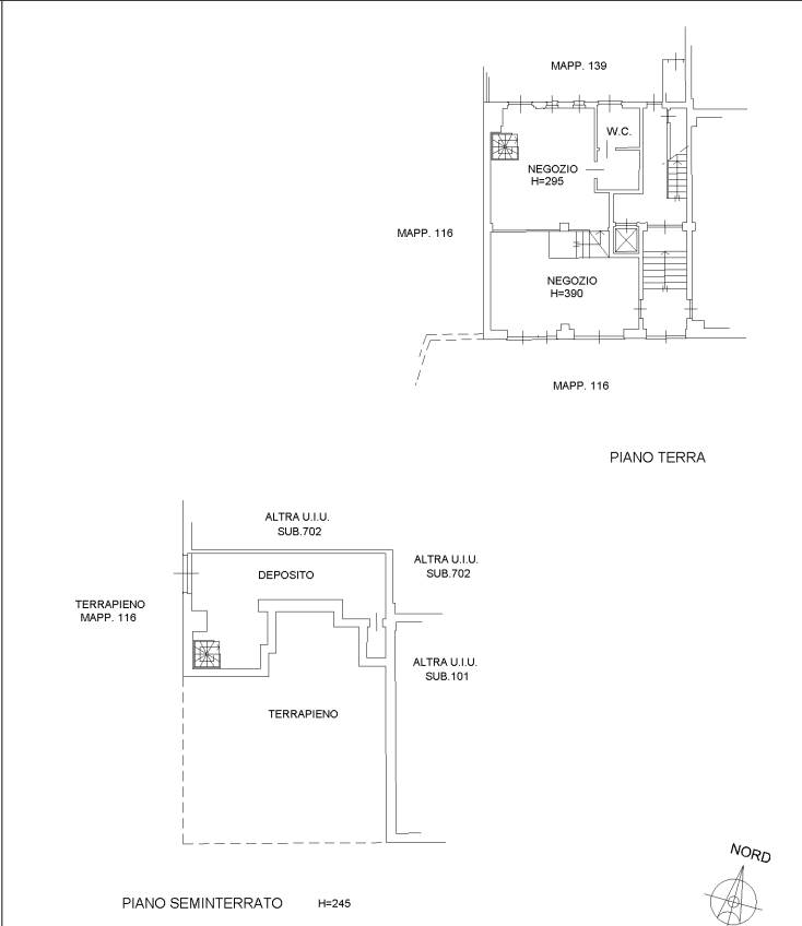
Locals
2
Bathrooms
1
Sqm
130
Floor
Ground floor
Energetic class
G
Property Conditions
Good
Rank
Medium
Furniture
Not Furnished
Type living
Living room
Heating
Central
Doors
Good
Blind
PVC Blinds
Floors Living Room
Ceramic
Floors Bedrooms
Ceramic
Floors Kitchen
Ceramic
Floors Bathroom
Ceramic
Floors
Ceramic
Number of windows
Two

Accessories: Passing Car, Pedestrian Crossing

Map
Via Barnaba Oriani 58, Milano (MI)
Share on
Cookie preference